Sous-compromis
Exclusif

Marseille (13008) T3 rénové avec terrasse – Carré d’Or, Marseille 8e – Résidence Le William

Réf : C-493 370 000 €

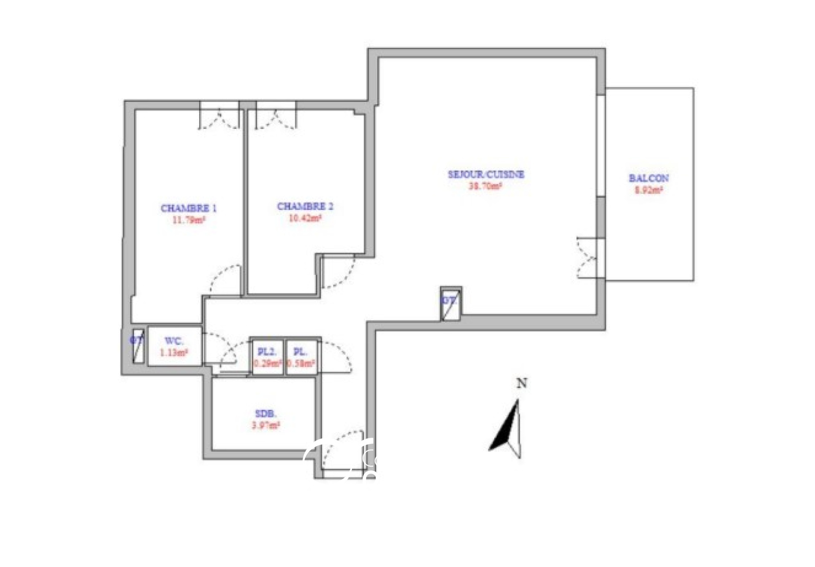
À vendre en exclusivité : superbe appartement T3 de 66.88 m² avec terrasse de 9 m², idéalement situé au cœur du très prisé Carré d’Or dans le 8ᵉ arrondissement de Marseille, résidence sécurisée "Le William", rue du Commandant Rolland. Entièrement rénové en 2017, ce bien clé en main, prêt à emménager, offre des prestations de qualité dans un environnement calme et verdoyant.

Caractéristiques :
- Grande pièce de vie de 27 m² lumineuse, exposée Est, donnant sur la terrasse
- 2 chambres, salle d’eau moderne et WC séparé
- Cuisine équipée, climatisation, double vitrage, porte blindée
- Terrasse de 9 m² avec vue dégagée sur la verdure, sans vis-à-vis
- Un garage en sous-sol disponible en sus : 30 000 €

Un véritable havre de paix en plein cœur du 8ᵉ, à proximité immédiate des commerces, écoles, transports, plages et Parc Borély.

Charges de copropriété : 140 € / Mois. Taxe foncière 2024 : 2 216 €. Estimation des coûts annuels d'énergie du logement entre 880 € et 1 260€ par an. Prix moyens des énergies indexés au 1er janvier 2021. Contact : Julia JALONG 06.23.80.54.68 - j.jalong@stein-immo.fr

TRAD_SIROCCO_Caracteristique Valeurs
Code postal 13008
Surface habitable (m²) 66,88 m²
Surface loi Carrez (m²) 66,88 m²
Nombre de chambre(s) 2
Nombre de pièces 3
Etage 2
Ascenseur OUI
TRAD_SIROCCO_Caracteristique Valeurs
Nb de salle de bains 1
Cuisine Américaine
Type de cuisine Equipée
Mode de chauffage Climatisation
Type de chauffage Air pulsé
Format de chauffage Individuel
Interphone OUI
Balcon NON
Terrasse OUI
Nombre de garage 1
Exposition Est
Quartier CARRE D'OR
TRAD_SIROCCO_Caracteristique Valeurs
Copropriété OUI
nombre de lots 30
Quote Part annuelle des charges 1 664 €
plan de sauvegarde NON
statut du syndic pas de procédure en cours
TRAD_SIROCCO_Caracteristique Valeurs
Prix de vente honoraires TTC inclus 370 000 €
Taxe foncière annuelle 2 216 €
DPE GES

Montant estimé des dépenses annuelles d'énergie pour un usage standard est compris entre 880 € et 1 260 € . Prix moyens des énergies indexés sur les années 2021, 2022 et 2023 (abonnements compris).

  • Commerces et santé
  • Loisirs
  • Ecoles
  • Transports
  • Pratique

Nos outils

Imprimer
Intéressé(e) par Ce bien ?

* Champ obligatoire

contacter l'agence

Les informations recueillies sur ce formulaire sont enregistrées dans un fichier informatisé par La Boite Immo agissant comme Sous-traitant du traitement pour la gestion de la clientèle/prospects de l'Agence / du Réseau qui reste Responsable du Traitement de vos Données personnelles.
La base légale du traitement repose sur l’intérêt légitime de l'Agence / du Réseau.
Elles sont conservées jusqu'à demande de suppression et sont destinées à l'Agence / au Réseau.
Conformément à la loi « informatique et libertés », vous pouvez exercer votre droit d'accès aux données vous concernant et les faire rectifier en contactant l'Agence / le Réseau.
Si vous estimez, après avoir contacté l'Agence / le Réseau, que vos droits « Informatique et Libertés » ne sont pas respectés, vous pouvez adresser une réclamation à la CNIL.
Nous vous informons de l’existence de la liste d'opposition au démarchage téléphonique « Bloctel », sur laquelle vous pouvez vous inscrire ici : https://www.bloctel.gouv.fr 
Dans le cadre de la protection des Données personnelles, nous vous invitons à ne pas inscrire de Données sensibles dans le champ de saisie libre
Ce site est protégé par reCAPTCHA, les Politiques de Confidentialité et les Conditions d'Utilisation de Google s'appliquent.

Rez de chaussée
chambre 11.79 m²

chambre 10.42 m²

salle de bain 3.97 m²

balcon 8.92 m²

salon/sejour 27 m²

Ces biens peuvent aussi vous intéresser
Sous-compromis
Exclusif
Coup de coeur
Marseille (13007)

-SOUS OFFRE - Exclusif ! Gros potentiel pour cet appartement T4...

Nous suivre sur