Découvrir le bien

Marseille (13005) T3 - Avenue Toulon - Entre Castellane et Timone

Réf : C-470

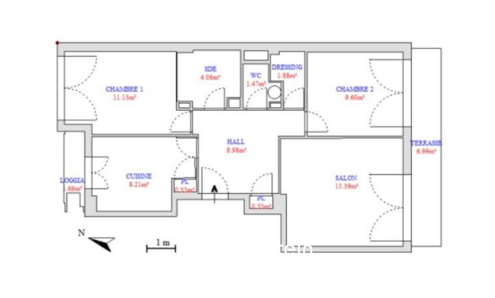
Le Cabinet Paul Stein vous propose en exclusivité, ce T3 en très bon état, d'une superficie Loi Carrez de 61,84m². Situé au 3ème étage d'une copropriété sécurisée, avec gardien, ce bien présente un fort potentiel. Il est traversant, orienté Nord / Sud et dispose d'un beau balcon exposé plein Sud de presque 7m2. Parquet d'origine en très bon état, cuisine équipée, il est également équipé de la climatisation réversible pour la pièce à vivre et de chauffages individuels électriques pour le reste de l'appartement. Pouvant à la fois séduire des particuliers en recherche de leur résidence principale que des investisseurs pour un projet de colocation à moins de quinze minutes à pied de la Timone, du métro Baille et Castellane, des accès autoroutes et du furtur tramway. Son emplacement stratégique central en fait un bien de qualité ! Une cave de 4.60 m² complète ce bien. Charges de copropriété : 118 € / mois. Taxe foncière : 1340 € / an. Estimation des coûts annuels d'énergie du logement entre 850 et 1220 € par an. Prix moyens des énergies indexés au 1er janvier 2021. Les informations sur les risques auxquels ce bien est exposé sont disponibles sur le site Géorisques. Contact : Julia JALONG, au 06 23 80 54 68 - j.jalong@stein-immo.fr.

TRAD_SIROCCO_Caracteristique Valeurs
Code postal 13005
Surface habitable (m²) 61,84 m²
Surface loi Carrez (m²) 61,84 m²
Nombre de chambre(s) 2
Nombre de pièces 3
Etage 3
Ascenseur OUI
TRAD_SIROCCO_Caracteristique Valeurs
Nb de salle d'eau 1
Cuisine Séparée
Type de cuisine Equipée
Mode de chauffage Electrique
Type de chauffage Air pulsé
Format de chauffage Individuel
Interphone OUI
Balcon OUI
Loggia OUI
Cave OUI
Exposition Nord-Sud
Quartier Avenue de Toulon, BAILLE, LODI
TRAD_SIROCCO_Caracteristique Valeurs
Copropriété OUI
nombre de lots 392
Quote Part annuelle des charges 1 410 €
plan de sauvegarde NON
statut du syndic pas de procédure en cours
TRAD_SIROCCO_Caracteristique Valeurs
Les honoraires d'agence seront intégralement à la charge du vendeur  
Charges 118 €
Taxe foncière annuelle 1 340 €
DPE GES

Montant estimé des dépenses annuelles d'énergie pour un usage standard est compris entre 850 € et 1 220 € . Prix moyens des énergies indexés sur les années 2021, 2022 et 2023 (abonnements compris).

  • Commerces et santé
  • Loisirs
  • Ecoles
  • Transports
  • Pratique

Nos outils

Imprimer
Rez de chaussée
entrée 8.98 m²

cuisine 8.21 m²

chambre 11.13 m²

chambre 9.60 m²

salon/sejour 15.39 m²

balcon 6.99 m²

cave 4.60 m²

Nous suivre sur